




Plot for sale
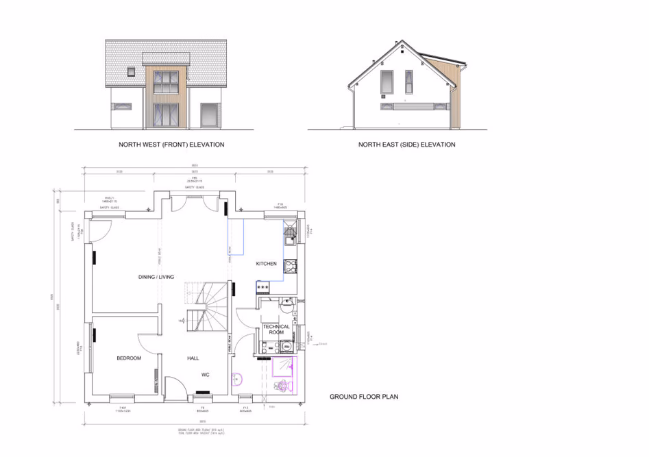
Lovely sea views over surrounding countryside and beyond from this building plot with detailed planning permission for a three/four bedroom detached family home by Dan-Wood which are built to high energy efficiency and 'turn key' ready, with input
Plot for sale
Description
Lovely sea views over surrounding countryside and beyond from this building plot with detailed planning permission for a three/four bedroom detached family home by Dan-Wood which are built to high energy efficiency and 'turn key' ready, with input
Contact Agent
Smart Picks — Professionals Relevant to This Land
Based on this property's key features, here are the specialists you may want to consult as part of your due diligence: land agents, rural solicitors and planning consultants.

Land Agents
Essential for navigating the land market, finding buyers, and securing the best price.

Rural Solicitors
Significant investment (£150K+) requires legal expertise for conveyancing, title checks, and transaction security.

Planning Consultants
Planning-sensitive site needs expert guidance for applications and development strategy.
Location
Building Plot at Levant